株式会社広瀬技建HIROSE GIKEN
一覧に戻る
中古一戸建て

泉町4丁目中古住宅

3LDK+S JR石北線 北見駅 徒歩7分
2,680万円(税込)
システムキッチン モニター付きインターフォン 追焚き機能 都市ガス 駐車場2台以上

基本情報

特徴
都市ガス、物置付き、駐車場3台
建物名
泉町4丁目中古住宅
建物
2階建
交通
JR石北線 北見駅 徒歩7分
所在地
北見市泉町4丁目4-13
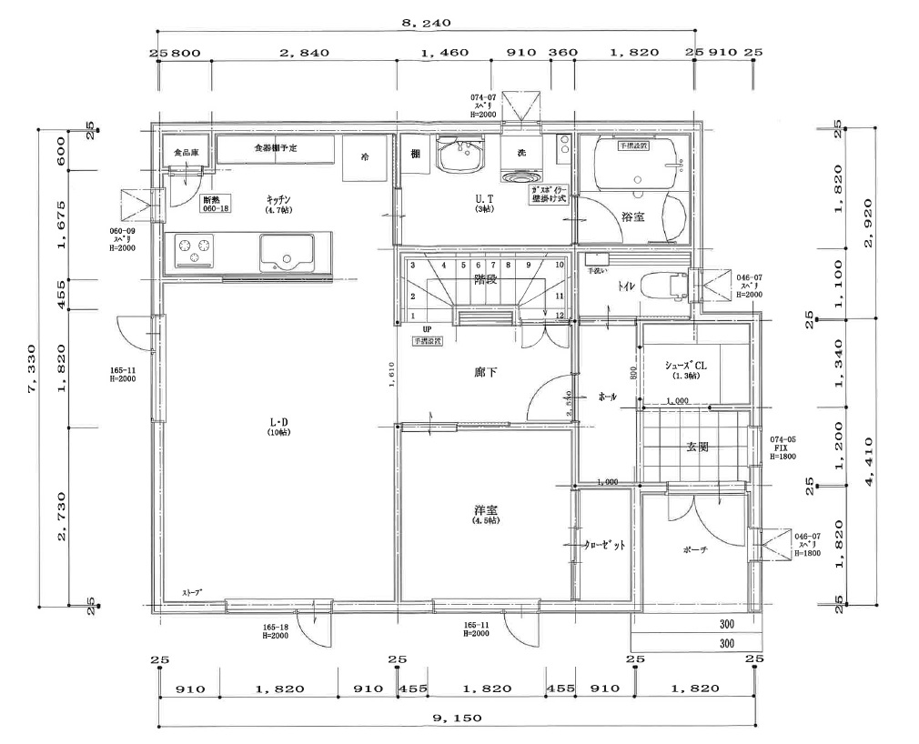
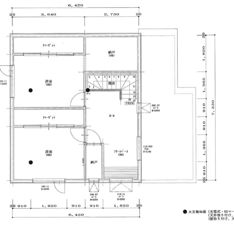
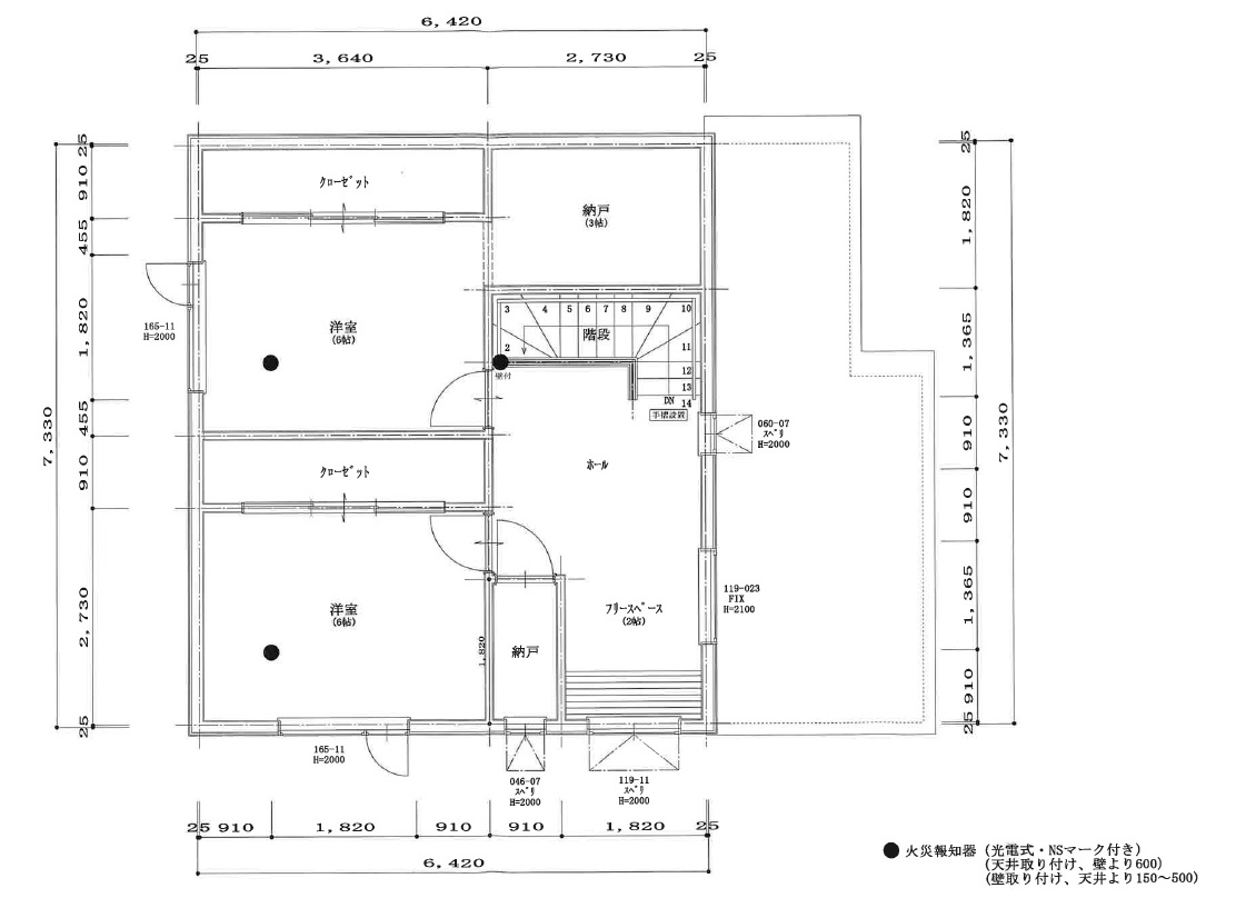
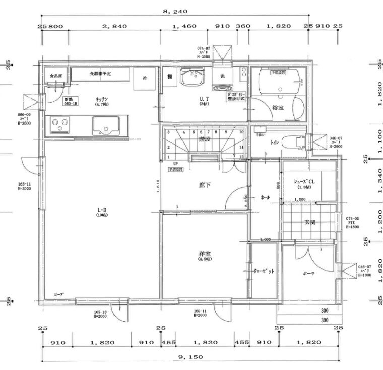
間取り
3LDK+S
価格
2,680万円(税込)
築年月
2016年6月
建物面積
108.14
土地面積
242.97
私道負担面積
-

物件詳細情報

交通
JR石北線 北見駅 徒歩7分
その他交通
-
所在地
北見市泉町4丁目4-13
物件種目
中古一戸建て
価格
2,680万円(税込)
設備
ウォークインクローゼット システムキッチン シャワー付洗面化粧台 タンクレストイレ モニタ付インターホン 上水道 下水道 全居室収納 温水洗浄便座 追焚機能 都市ガス 電気 3口以上コンロ 
住宅販売瑕疵
担保責任保険
(1号保険)
-
評価・証明書
-
備考
主要採光面:南東
施工会社:株式会社広瀬技建
駐車場
敷地内3台
建物構造
木造
都市計画
市街化区域
用途地域
2種住居地域
接道状況
南東 幅員6m公道 接面12.7m
建ぺい率
60
容積率
200
地目
その他の地目
地勢
平坦
国土法届出
-
セットバック
-
建築確認番号
-
現状
入居中
引渡可能時期
相談
情報公開日
2026/04/27

※「-」と表示されている項目については、情報提供会社にご確認ください。

  • 間取図は、現況を優先させていただきます。
  • 映像は物件の一部を撮影したものです。物件の契約にあたっての最終判断はご自身の判断に基づいて行ってください。
  • 消費税について
    当サイトの課税対象となる物件価格およびその他費用等は、税込み表示となっております(100円未満は切上げ)。
    詳しくは、当社までお問い合わせください。

情報提供会社

会社名 株式会社広瀬技建
所在地 札幌市北区北24条西19丁目5-12  Googleマップはこちら
代表者 代表取締役 廣瀬真生
TEL 011-792-0680
FAX 011-792-0681
営業時間 9:00~18:00
定休日 年末年始 GW お盆
免許
  • 特定建設業 北海道知事許可 (特-3) 石 第23911号
  • 一級建築士事務所 (石) 第6513
  • 宅地建物取引業 北海道知事許可 石狩(5) 第9105号

お問い合わせ

ご相談・ご質問等ございましたら、
お気軽にお問い合わせください。

札幌本社

TEL.011-792-0680

北見支店

TEL.0157-25-7836

電話受付:9:00-18:00(水曜日を除く)

お問い合わせはこちら